Click Here To Return To Maui Condo Page

KAHANA FALLS

TheHawaiiStateCondoGuide.com Suggests
For Your Real Estate Needs In This Condominium
CONDOMINIUM NAME
KAHANA FALLS
ADDRESS
click address for satellite image
CITY
LAHAINA
ZIP CODE
96761
CLICK FOR DATA IN THIS ZIP CODE
2-4-3-010-032
LAND AREA
2.63 ACRES
NEIGHBORHOOD
KAHANA
ZONING
H-M / TIMESHARE
# OF BUILDINGS
4
# OF FLOORS
6
# OF UNITS
74
YEAR BUILT
1991
VIEW
OCEAN / MOUNTAIN
WATER FRONTAGE
NONE
FLOOD ZONE
MANAGEMENT COMPANY
NAIA PROPERTIES INC
CONTACT
RICHARD ZIMMERMAN
PHONE #
808-669-0402
RESIDENT MANAGER
MANAGERS PHONE #
VACATION RENTAL ALLOWED
YES
LONG TERM RENTAL/TIMESHARE
NO / YES
OWNER OCCUPANCY
0%
FHA & VA APPROVED CONDOS
CONSTRUCTION
CONCRETE
TENURE
FS
LEASE EXP DATE
--
RENEGOTIATION DATE
--
LESSOR
--
ARCHITECT
DEVELOPER
KAHANA FALLS L P
EXTRA FEATURES
BBQ AREA
YES
SWIMMING POOL
YES
HOTTUB / SPA
YES
PUTTING GREEN
RECREATION AREA(S)
YES
CABANA / CLUB HOUSE
--
EVENT / MEETING ROOM(S)
--
EXERCISE ROOM
--
TENNIS COURT
--
VOLLEY BALL
--
WALK TO BEACH / BEACH ACCESS
YES
GOLF
--
SHOPS / RESTAURANTS
--
ELEVATOR
YES
GATED COMMUNITY
--
SECURITY BUILDING
--
SECURITY GUARD
YES
AIR CONDITIONING
YES
CABLE PAID BY ASSOCIATION
--
PLAYGROUND
--
STORAGE
--
LOCAL AREA SCHOOLS  
ELEMENTARY
INTERMEDIATE
HIGH SCHOOL
PETS
PETS ALLOWED
NO
APARTMENT FURNISHINGS
DISHWASHER
YES
REFRIGERATOR
YES
RANGE / OVEN MICROWAVE
YES
INDIVIDUAL WASHER / DRYER
YES
WATER HEATER
--
COMMUNITY LAUNDRY ROOM
--
 
 
 
 
 
   
   
   
BEDS
BATHS
INTERIOR SQFT
TOTAL UNITS
 
1
1
417
8
 
1
1
473
2
 
1
2
761
24
BEDS
BATHS
INTERIOR SQFT
TOTAL UNITS
 
0
0
950
1
 
2
2
957
36
         
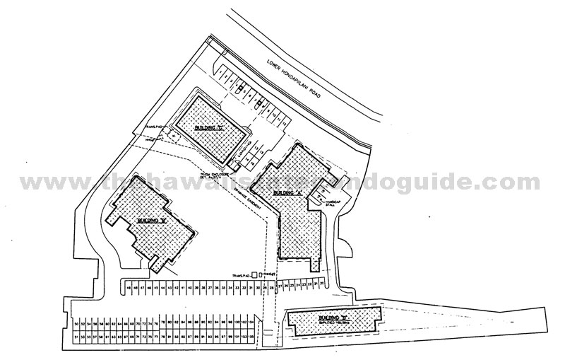
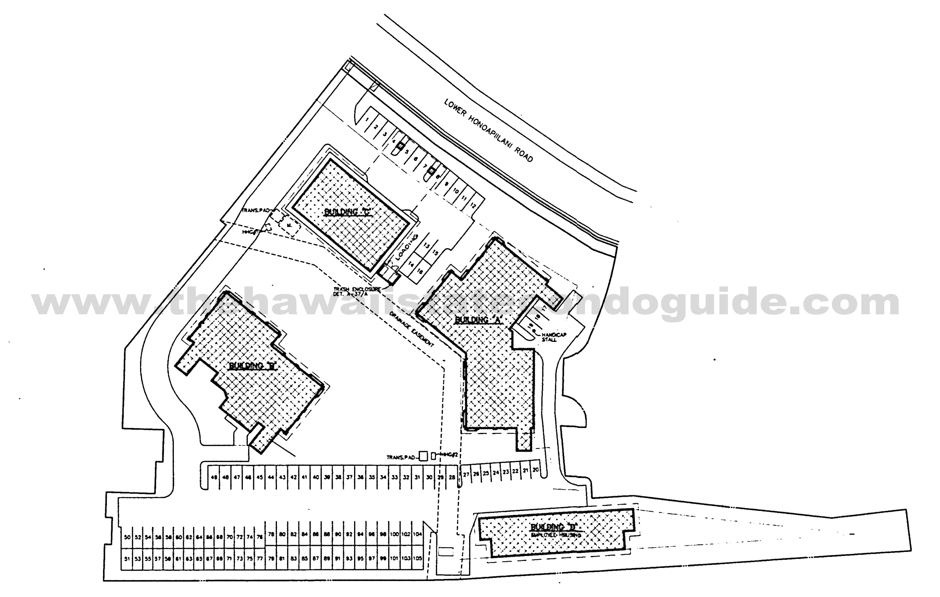
Site Plans, Maui Hawaii Condominiums
 
 
Thank you for using The Hawaii State Condo Guide. Marty Sanders (RA) & HalbergCS developed this product to help real estate professionals and consumers find, analyze and compare condominium and co-op properties in Hawaii .  The properties are listed in alphabetical order by TMK (Tax map Key) Zones; the Maui County coverage includes the fhe following areas: Kapalua, Napili - Kahana- Honokowai, Kaanapali, Lahaina, Maalaea, Kihei, Wailea - Makena, Wailuku, Kahului, Pukalani, Spreckelsville-Paia-Kuau, Hana, Molokai, Lanai for more...see the Maui Condo Page.
We strive to provide as complete data as possible about each condo and co-op listed including but not limited to Name, address, zip code, area schools, owner occupancy, # of buildings, floors, # of units, floor plans, amenities, inclusions, pets, tenure, tmk, land area, etc…
We hope you have found this Oahu guide useful and will recommend it to your friends and colleagues.  Please also see our sections on The Valley Isle of Maui, The Friendly Isle of Molokai & The Pineapple Island of Lanai, The Big Island of Hawaii and The Garden Island of Kauai.
all data contained in this website gathered from public sources and has not been verified by website owners.
This website built and maintained by HalbergCS. This website is owned by Marty Sanders (RA) & HalbergCS © 2015