Click Here To Return To Maui Condo Page

KIHEI SHORES
(FKA MAUI COURT)

TheHawaiiStateCondoGuide.com Suggests
For Your Real Estate Needs In This Condominium
CONDOMINIUM NAME

KIHEI SHORES (FKA MAUI COURT)

ADDRESS
click address for satellite image
CITY
KIHEI
ZIP CODE
96753
CLICK FOR DATA IN THIS ZIP CODE
2-3-9-004-135
LAND AREA
6.93 ACRES
NEIGHBORHOOD
KIHEI
ZONING
A-1 & A-2
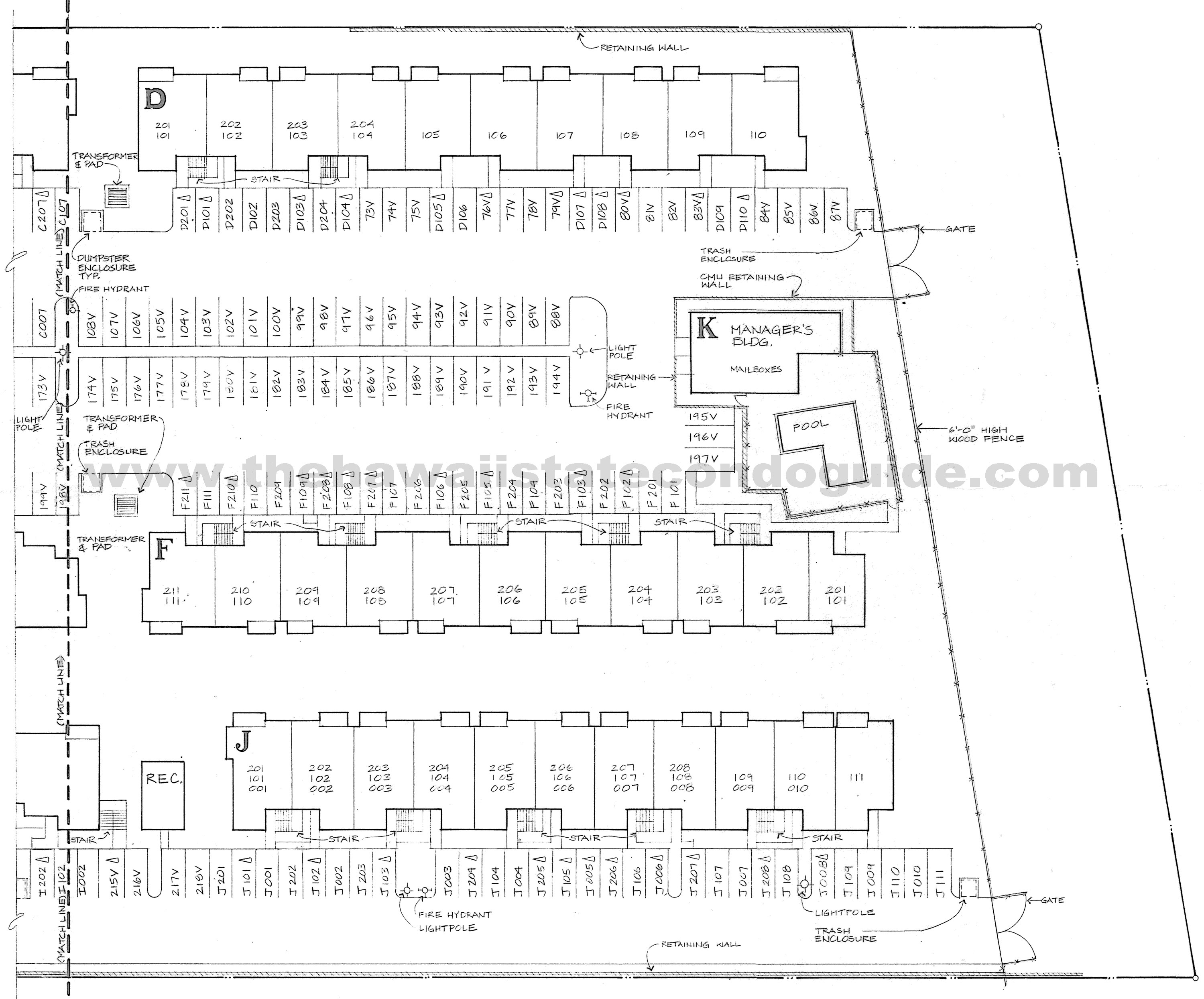
# OF BUILDINGS
12
# OF FLOORS
4
# OF UNITS
217
YEAR BUILT
1992
VIEW
OCEAN / MOUNTAIN / GARDEN
WATER FRONTAGE
ACROSS FROM OCEAN
FLOOD ZONE
MANAGEMENT COMPANY
SELF MANAGED
CONTACT
PHONE #
RESIDENT MANAGER
LISA RANEY
MANAGERS PHONE #
808-875-0077
VACATION RENTAL ALLOWED
NO
LONG TERM RENTAL
YES
OWNER OCCUPANCY
28%
FHA & VA APPROVED CONDOS
CONSTRUCTION
CONCRETE / WOOD
TENURE
FS
LEASE EXP DATE
--
RENEGOTIATION DATE
--
LESSOR
--
ARCHITECT
DEVELOPER
MAUI COURT (US) LP
EXTRA FEATURES
BBQ AREA
YES
SWIMMING POOL
YES
HOTTUB / SPA
YES
PUTTING GREEN
--
RECREATION AREA(S)
YES
CABANA / CLUB HOUSE
--
EVENT / MEETING ROOM(S)
--
EXERCISE ROOM
--
TENNIS COURT
--
VOLLEY BALL
--
WALK TO BEACH / BEACH ACCESS
YES
GOLF
--
SHOPS / RESTAURANTS
--
ELEVATOR
--
GATED COMMUNITY
--
SECURITY BUILDING
--
SECURITY GUARD
--
AIR CONDITIONING
--
CABLE PAID BY ASSOCIATION
YES
PLAYGROUND
--
STORAGE
--
LOCAL AREA SCHOOLS  
ELEMENTARY
INTERMEDIATE
HIGH SCHOOL
PETS
PETS ALLOWED
NO
APARTMENT FURNISHINGS
DISHWASHER
YES
REFRIGERATOR
YES
RANGE / OVEN MICROWAVE
YES
INDIVIDUAL WASHER / DRYER
YES
WATER HEATER
YES
COMMUNITY LAUNDRY ROOM
--
 
 
 
 
 
   
   
   
BEDS
BATHS
INTERIOR SQFT
TOTAL UNITS
 
1
1
579
1
 
1
1
597
6
 
1
1
599
2
 
1
1
681
1
BEDS
BATHS
INTERIOR SQFT
TOTAL UNITS
 
2
2
698
20
 
2
1
719
2
 
2
2
719
88
         
Thank you for using The Hawaii State Condo Guide. Marty Sanders (RA) & HalbergCS developed this product to help real estate professionals and consumers find, analyze and compare condominium and co-op properties in Hawaii .  The properties are listed in alphabetical order by TMK (Tax map Key) Zones; the Maui County coverage includes the fhe following areas: Kapalua, Napili - Kahana- Honokowai, Kaanapali, Lahaina, Maalaea, Kihei, Wailea - Makena, Wailuku, Kahului, Pukalani, Spreckelsville-Paia-Kuau, Hana, Molokai, Lanai for more...see the Maui Condo Page.
We strive to provide as complete data as possible about each condo and co-op listed including but not limited to Name, address, zip code, area schools, owner occupancy, # of buildings, floors, # of units, floor plans, amenities, inclusions, pets, tenure, tmk, land area, etc…
We hope you have found this Oahu guide useful and will recommend it to your friends and colleagues.  Please also see our sections on The Valley Isle of Maui, The Friendly Isle of Molokai & The Pineapple Island of Lanai, The Big Island of Hawaii and The Garden Island of Kauai.
all data contained in this website gathered from public sources and has not been verified by website owners.
This website built and maintained by HalbergCS. This website is owned by Marty Sanders (RA) & HalbergCS © 2015