Honolulu Condos For Sale The Hawaii State Condo Guide

Executive Centre

Your Hawaii State Condo Guide Realtor
Marty Sanders (RA) Signature Homes Island Style Honolulu Hawaii 808-222-3804
Contact Marty Sanders (RA) Signature Homes Island Style Honolulu Hawaii 808-222-3804
or email martysanders808@gmail.com or Call 808-222-3804
CONDOMINIUM NAME
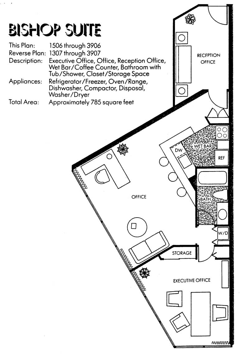
EXECUTIVE CENTRE
ADDRESS
click address for satellite image
CITY

HONOLULU

ZIP CODE
96813
 
1-2-1-012-004
LAND AREA
1.34 ACRES
NEIGHBORHOOD

DOWNTOWN

ZONING
BMX-4
# OF BUILDINGS
2
# OF FLOORS
41
# OF UNITS
1375
YEAR BUILT
1981
VIEW
CITY
WATER FRONTAGE
NONE
FLOOD ZONE
X
MANAGEMENT COMPANY
ASHTON HOTELS & RESORTS
CONTACT
KELSI TAKABAYASHI
PHONE #
808-931-1451
RESIDENT MANAGER
MANAGERS PHONE #
VACATION RENTAL ALLOWED
OWNER OCCUPANCY
29%
FHA & VA APPROVED CONDOS
CONSTRUCTION
CONCRETE
TENURE
LH
LEASE EXP DATE
1/1/2053
RENEGOTIATION DATE
1/31/2013
LESSOR
Bishop Est
ARCHITECT
DEVELOPER
EXCT LIMITED PARTNERSHIP
EXTRA FEATURES
BBQ AREA
--
SWIMMING POOL
YES
HOTTUB / SPA
YES
PUTTING GREEN
--
RECREATION AREA(S)
YES
CABANA / CLUB HOUSE
YES
EVENT / MEETING ROOM(S)
YES
EXERCISE ROOM
YES
TENNIS COURT
--
VOLLEY BALL
--
WALK TO BEACH / BEACH ACCESS
--
SHOPS / RESTAURANTS
YES
ELEVATOR
YES
GATED COMMUNITY
--
SECURITY BUILDING
--
SECURITY GUARD
YES
AIR CONDITIONING
YES
CABLE PAID BY ASSOCIATION
YES
PLAYGROUND
--
STORAGE
--
LOCAL AREA SCHOOLS  
ELEMENTARY
INTERMEDIATE
HIGH SCHOOL
PETS
PETS
NO
 
APARTMENT FURNISHINGS
DISHWASHER
YES
REFRIGERATOR
YES
RANGE / OVEN MICROWAVE
YES
INDIVIDUAL WASHER / DRYER
--
WATER HEATER
--
COMMUNITY LAUNDRY ROOM
YES
 
 
 
 
 
   
   
BEDS
BATHS
INTERIOR SQFT
TOTAL UNITS
 
--
--
372
10
 
--
--
378
1
 
--
--
400
1
 
1
1
450
25
 
--
--
455
2
 
1
1
465
28
 
--
--
470
2
 
--
--
477
18
 
--
--
508
1
 
--
--
525
20
 
1
1
525
55
 
1
1.5
525
2
 
--
--
534
2
 
--
--
536
10
 
1
1
543
28
 
--
--
552
9
 
1
1
552
1
1
1
570
28
 
--
--
579
1
 
--
--
590
20
 
1
1
591
26
 
1
1
600
2
 
1
1
616
28
 
--
--
626
9
 
--
--
639
1
BEDS
BATHS
INTERIOR SQFT
TOTAL UNITS
 
1
1
650
60
 
--
--
700
1
 
--
--
714
1
 
--
--
718
8
 
--
--
742
1
 
1
1
774
6
 
1
1
798
52
 
--
--
802
1
 
--
--
807
1
 
--
--
859
9
 
1
1
861
1
 
913
1
 
1
1.5
967
11
 
---
--
989
1
 
--
--
1081
1
 
1
1.5
1098
3
 
1
1.5
1111
1
 
1
1.5
1217
11
 
--
--
1811
1
 
--
--
2040
1
 
--
--
2826
1
 
--
--
5522
1
 
--
--
6075
1
 
--
1.5
8217
1
         
   
 
Thank you for using The Hawaii State Condo Guide. Marty Sanders (RA) & HalbergCS developed this product to help real estate professionals and consumers find, analyze and compare condominium and co-op properties in Hawaii .  The properties are listed in alphabetical order by TMK (Tax map Key) Zones and include in the Oahu (City and County of Honolulu) section; the following are some of the areas we cover: Metro Honolulu, Salt Lake, Kalihi, Kam Heights, Nuuanu, Downtown, Kakaako, Pacific Heights, Punchbowl, Diamond Head, Hawaii Kai, Aina Haina, Niu Valley, Kapahulu, Kaimuki, Kahala, Lanikai, Kailua, Kaneohe, Kaaawa, Hauula, Laie, Kahuku, North Shore, Haleiwa, Waimea, Central, Wahiawa, Leeward, Waianae, Maili, Nanakuli, Makaha, Aiea, Pearl City, Ewa, Ewa Beach, Kapolei, Makakilo, Waipahu, Royal Kunia, Mililani, Halawa, Manana, for more...see the Oahu Condo Page.
We strive to provide as complete data as possible about each condo and co-op listed including but not limited to Name, address, zip code, area schools, owner occupancy, # of buildings, floors, # of units, floor plans, amenities, inclusions, pets, tenure, tmk, land area, etc…
We hope you have found this Oahu guide useful and will recommend it to your friends and colleagues.  Please also see our sections on The Valley Isle of Maui, The Friendly Isle of Molokai & The Pineapple Island of Lanai, The Big Island of Hawaii and The Garden Island of Kauai.
all data contained in this website gathered from public sources and has not been verified by website owners.
This website built and maintained by HalbergCS. This website is owned by Marty Sanders (RA) & HalbergCS © 2015