Honolulu Condos For Sale The Hawaii State Condo Guide

THE ARBORS

Your Hawaii State Condo Guide Realtor
Marty Sanders (RA) Signature Homes Island Style Honolulu Hawaii 808-222-3804
Contact Marty Sanders (RA) Signature Homes Island Style Honolulu Hawaii 808-222-3804
or email martysanders808@gmail.com or Call 808-222-3804
CONDOMINIUM NAME
THE ARBORS
ADDRESS
click address for satellite image
CITY

EWA BEACH

ZIP CODE
96706
 
1-9-1-061-004, 29, 30, 31
LAND AREA
7.63
NEIGHBORHOOD

EWA

ZONING
A-1
# OF BUILDINGS
42
# OF FLOORS
2
# OF UNITS
289
YEAR BUILT
1991
VIEW
GARDEN
WATER FRONTAGE
NONE
FLOOD ZONE
D
MANAGEMENT COMPANY
CERTIFIED MGMT INC
CONTACT
CANDACE VILLARMIA
PHONE #
8088360911
RESIDENT MANAGER
MANAGERS PHONE #
VACATION RENTAL ALLOWED
OWNER OCCUPANCY
%
FHA & VA APPROVED CONDOS
CONSTRUCTION
WOOD
TENURE
FS
LEASE EXP DATE
--
RENEGOTIATION DATE
--
LESSOR
--
ARCHITECT
DEVELOPER
THE GENTRY COMPANIES
EXTRA FEATURES
BBQ AREA
YES
SWIMMING POOL
YES
HOTTUB / SPA
--
PUTTING GREEN
--
RECREATION AREA(S)
YES
CABANA / CLUB HOUSE
YES
EVENT / MEETING ROOM(S)
--
EXERCISE ROOM
--
TENNIS COURT
--
VOLLEY BALL
--
WALK TO BEACH / BEACH ACCESS
--
SHOPS / RESTAURANTS
--
ELEVATOR
--
GATED COMMUNITY
YES
SECURITY BUILDING
--
SECURITY GUARD
--
AIR CONDITIONING
--
CABLE PAID BY ASSOCIATION
--
PLAYGROUND
--
STORAGE
YES
LOCAL AREA SCHOOLS  
ELEMENTARY
INTERMEDIATE
HIGH SCHOOL
PETS
PETS
YES
 
APARTMENT FURNISHINGS
DISHWASHER
YES
REFRIGERATOR
YES
RANGE / OVEN MICROWAVE
YES
INDIVIDUAL WASHER / DRYER
YES
WATER HEATER
YES
LAUNDRY ROOM
--
 
 
 
 
 
   
   
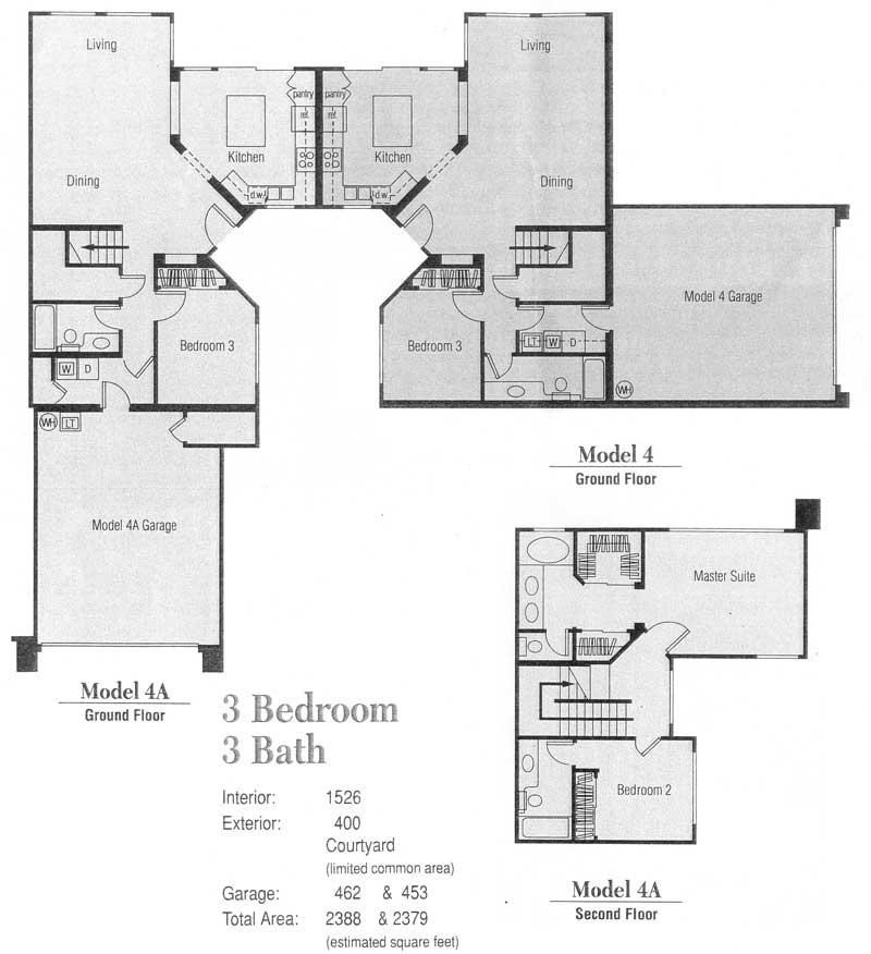
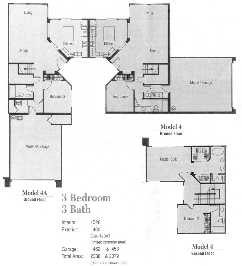
BEDS
BATHS
INTERIOR SQFT
TOTAL UNITS
 
2
2
1009
37
 
2
2
1010
17
 
2
2
1060
17
 
2
2
1079
2
BEDS
BATHS
INTERIOR SQFT
TOTAL UNITS
 
2
2
1098
17
 
2
2
1196
1
 
3
3
1526
36
         
 
 
Thank you for using The Hawaii State Condo Guide. Marty Sanders (RA) & HalbergCS developed this product to help real estate professionals and consumers find, analyze and compare condominium and co-op properties in Hawaii .  The properties are listed in alphabetical order by TMK (Tax map Key) Zones and include in the Oahu (City and County of Honolulu) section; the following are some of the areas we cover: Metro Honolulu, Salt Lake, Kalihi, Kam Heights, Nuuanu, Downtown, Kakaako, Pacific Heights, Punchbowl, Diamond Head, Hawaii Kai, Aina Haina, Niu Valley, Kapahulu, Kaimuki, Kahala, Lanikai, Kailua, Kaneohe, Kaaawa, Hauula, Laie, Kahuku, North Shore, Haleiwa, Waimea, Central, Wahiawa, Leeward, Waianae, Maili, Nanakuli, Makaha, Aiea, Pearl City, Ewa, Ewa Beach, Kapolei, Makakilo, Waipahu, Royal Kunia, Mililani, Halawa, Manana, for more...see the Oahu Condo Page.
We strive to provide as complete data as possible about each condo and co-op listed including but not limited to Name, address, zip code, area schools, owner occupancy, # of buildings, floors, # of units, floor plans, amenities, inclusions, pets, tenure, tmk, land area, etc…
We hope you have found this Oahu guide useful and will recommend it to your friends and colleagues.  Please also see our sections on The Valley Isle of Maui, The Friendly Isle of Molokai & The Pineapple Island of Lanai, The Big Island of Hawaii and The Garden Island of Kauai.
all data contained in this website gathered from public sources and has not been verified by website owners.
This website built and maintained by HalbergCS. This website is owned by Marty Sanders (RA) & HalbergCS © 2015