Honolulu Condos For Sale The Hawaii State Condo Guide

THE WATERMARK

Your Hawaii State Condo Guide Realtor
Marty Sanders (RA) Signature Homes Island Style Honolulu Hawaii 808-222-3804
Contact Marty Sanders (RA) Signature Homes Island Style Honolulu Hawaii 808-222-3804
or email martysanders808@gmail.com or Call 808-222-3804
CONDOMINIUM NAME
THE WATERMARK
ADDRESS
click address for satellite image
CITY

HONOLULU

ZIP CODE
96815
 
1-2-6-011-001
LAND AREA
3.64 ACRES
NEIGHBORHOOD

WAIKIKI

ZONING
APART
# OF BUILDINGS
3
# OF FLOORS
38
# OF UNITS
212
YEAR BUILT
2008
VIEW
OCEAN / CITY
WATER FRONTAGE
CANAL
FLOOD ZONE
AO
MANAGEMENT COMPANY
HAWAIIANA MANAGEMENT
CONTACT
PHONE #
808-593-9100
RESIDENT MANAGER
MANAGERS PHONE #
VACATION RENTAL ALLOWED
OWNER OCCUPANCY
%
FHA & VA APPROVED CONDOS
CONSTRUCTION
CONCRETE / STEEL
TENURE
FS
LEASE EXP DATE
--
RENEGOTIATION DATE
--
LESSOR
--
ARCHITECT
DEVELOPER
iNTRACORP
The Watermark' is a 37 floor highrise offering 210 exclusive 2-bedroom, 2-bath luxury residences, elegantly finished with African mahogany cabinetry, Brazilian granite countertops, Viking Professional Series appliances, central air conditioning and walk-in closets.
All residences feature floor-to-ceiling windows in the living room and a generous lanai, giving you expansive views of the ocean, yacht harbor and the city.
All of the spacious private lanais face Ala Moana Beach Park and takeadvantage of the prevailing breezes and dramatic sunsets while entertaining guests outdoors.
EXTRA FEATURES
BBQ AREA
YES
SWIMMING POOL
YES
HOTTUB / SPA
YES
PUTTING GREEN
--
RECREATION AREA(S)
YES
CABANA / CLUB HOUSE
YES
EVENT / MEETING ROOM(S)
YES
EXERCISE ROOM
YES
TENNIS COURT
--
VOLLEY BALL
--
WALK TO BEACH / BEACH ACCESS
--
GOLF
--
SHOPS / RESTAURANTS
--
ELEVATOR
YES
GATED COMMUNITY
--
SECURITY BUILDING
YES
SECURITY GUARD
YES
AIR CONDITIONING
YES
CABLE PAID BY ASSOCIATION
--
PLAYGROUND
--
STORAGE
YES
LOCAL AREA SCHOOLS  
ELEMENTARY
INTERMEDIATE
HIGH SCHOOL
PETS
PETS
 
APARTMENT FURNISHINGS
DISHWASHER
YES
REFRIGERATOR
YES
RANGE / OVEN MICROWAVE
YES
INDIVIDUAL WASHER / DRYER
YES
WATER HEATER
--
COMMUNITY LAUNDRY ROOM
--
 
 
 
 
   
   
   
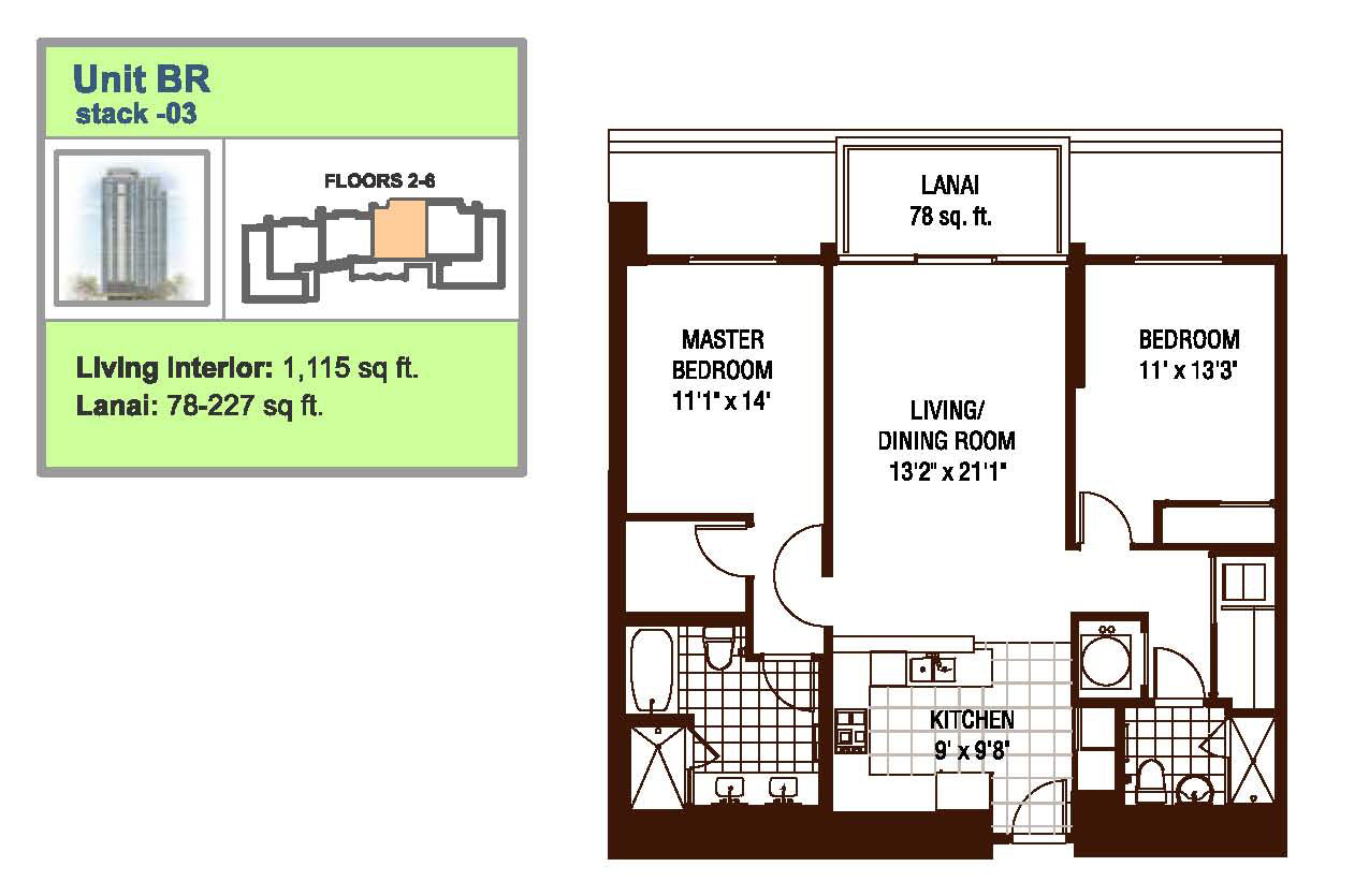
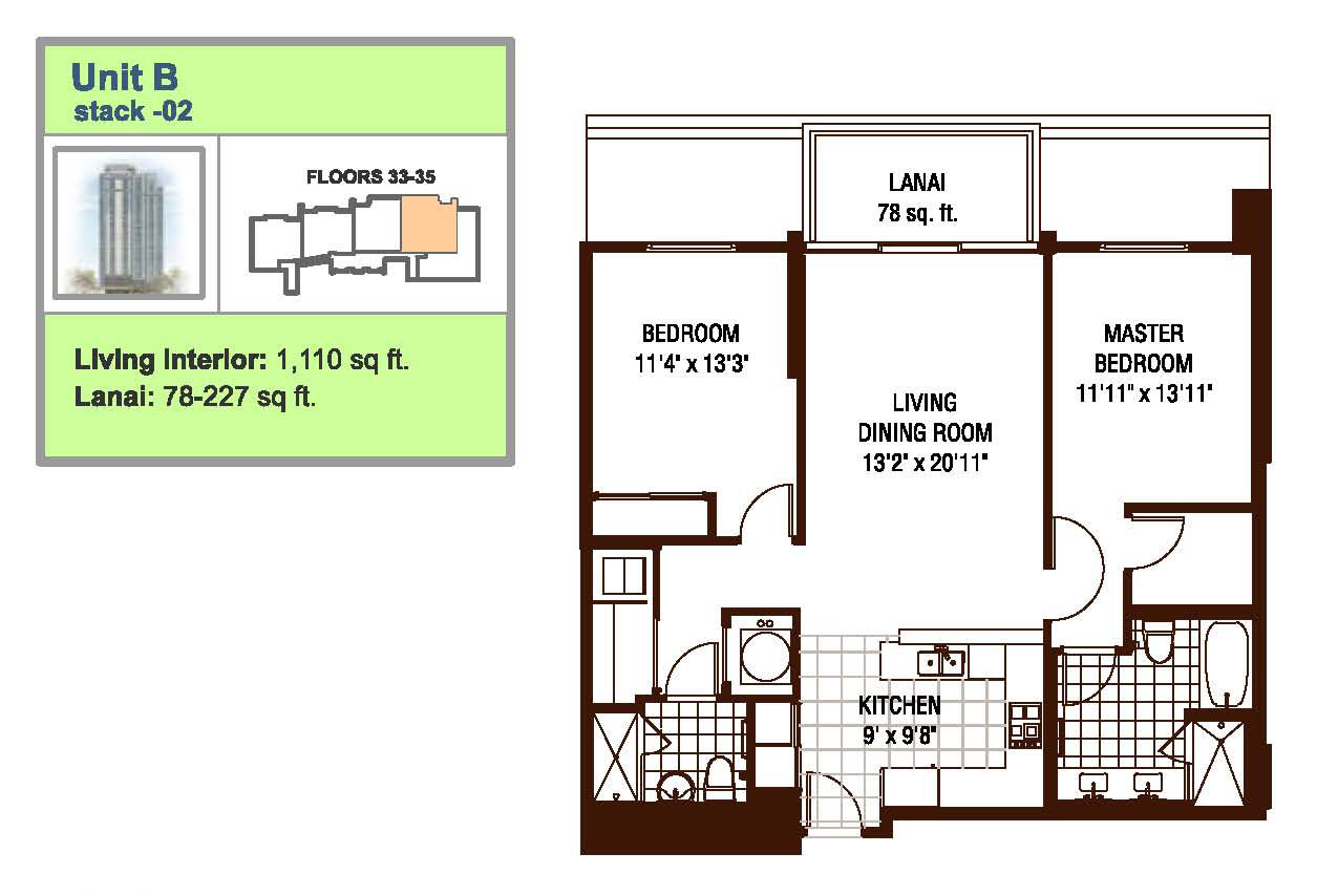
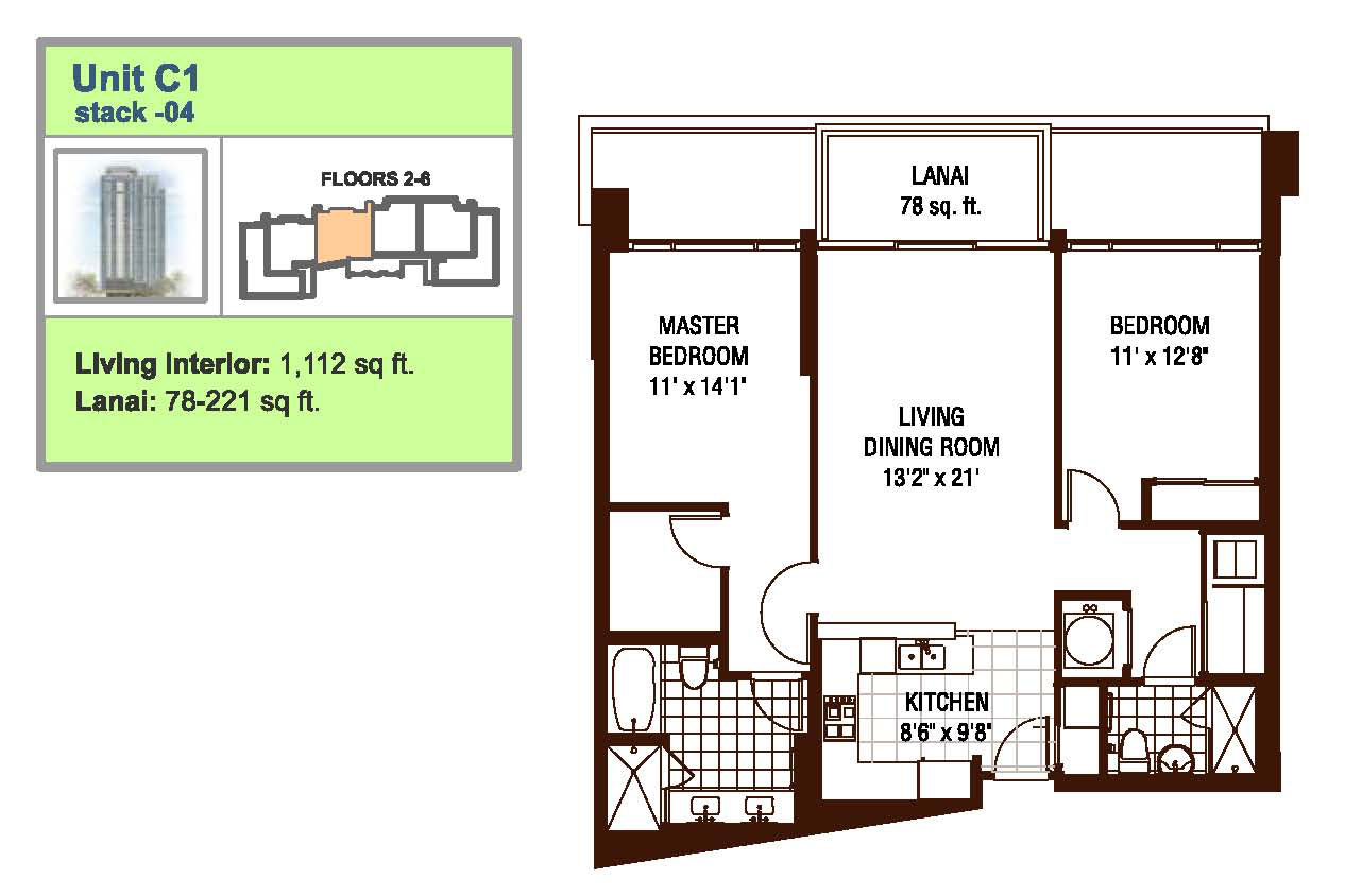
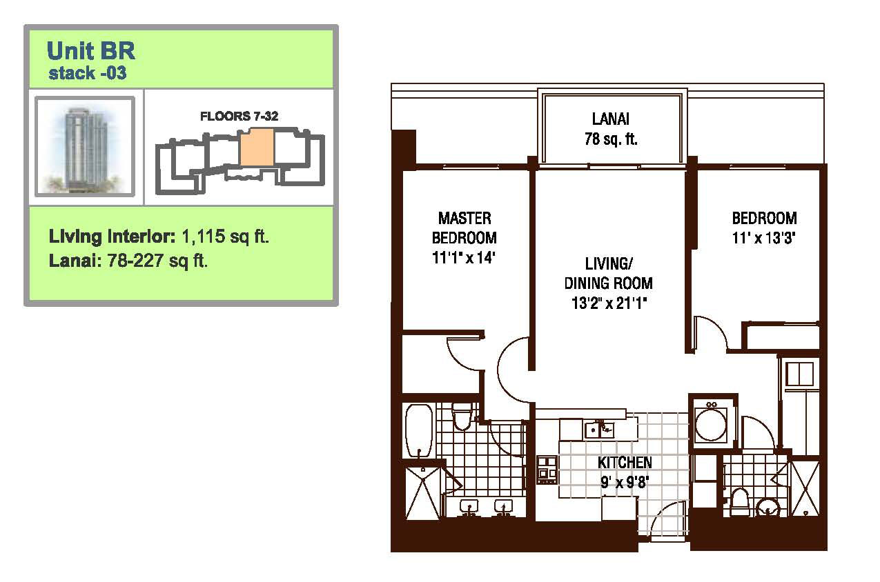
FLOOR PLANS
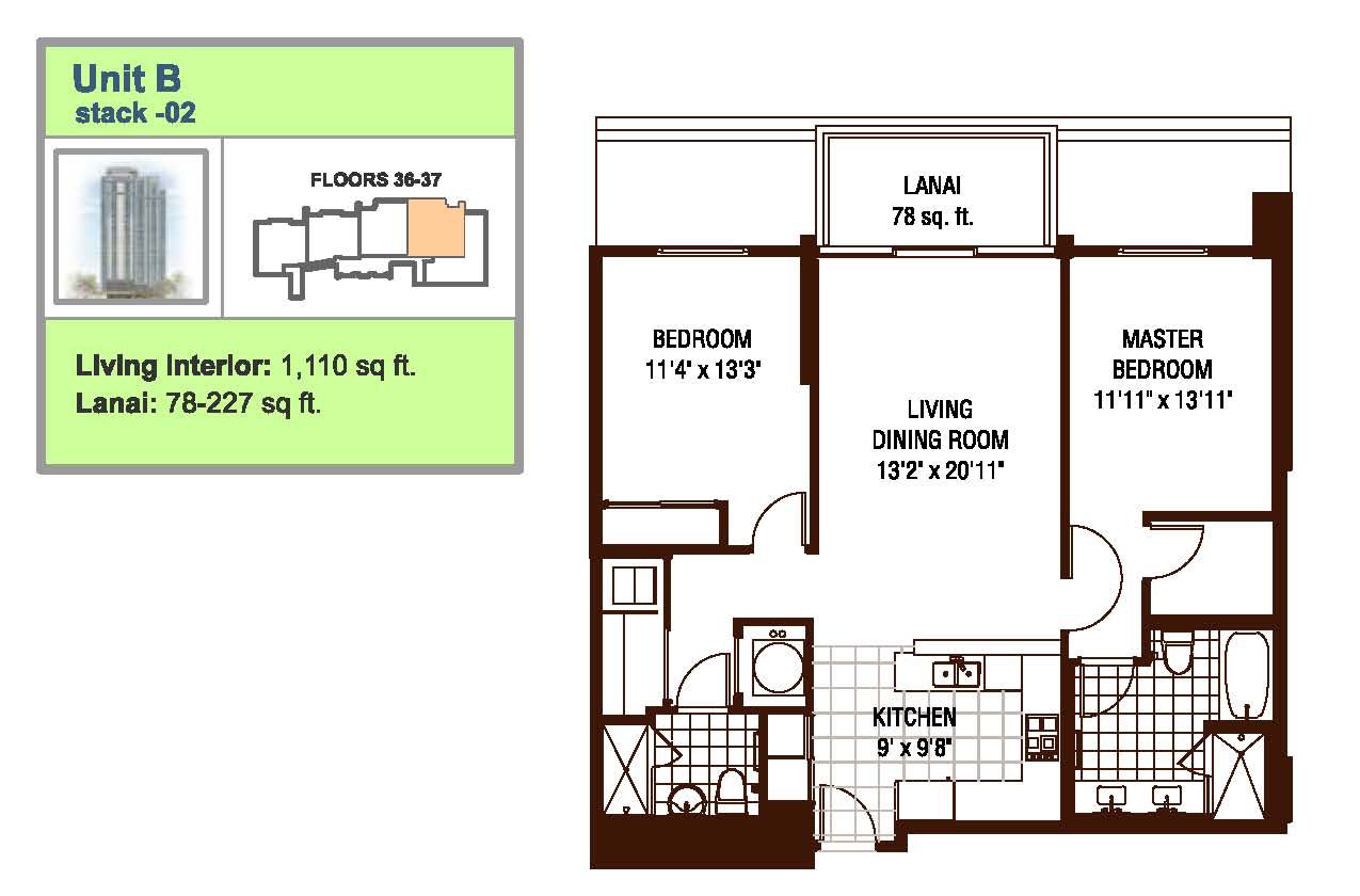
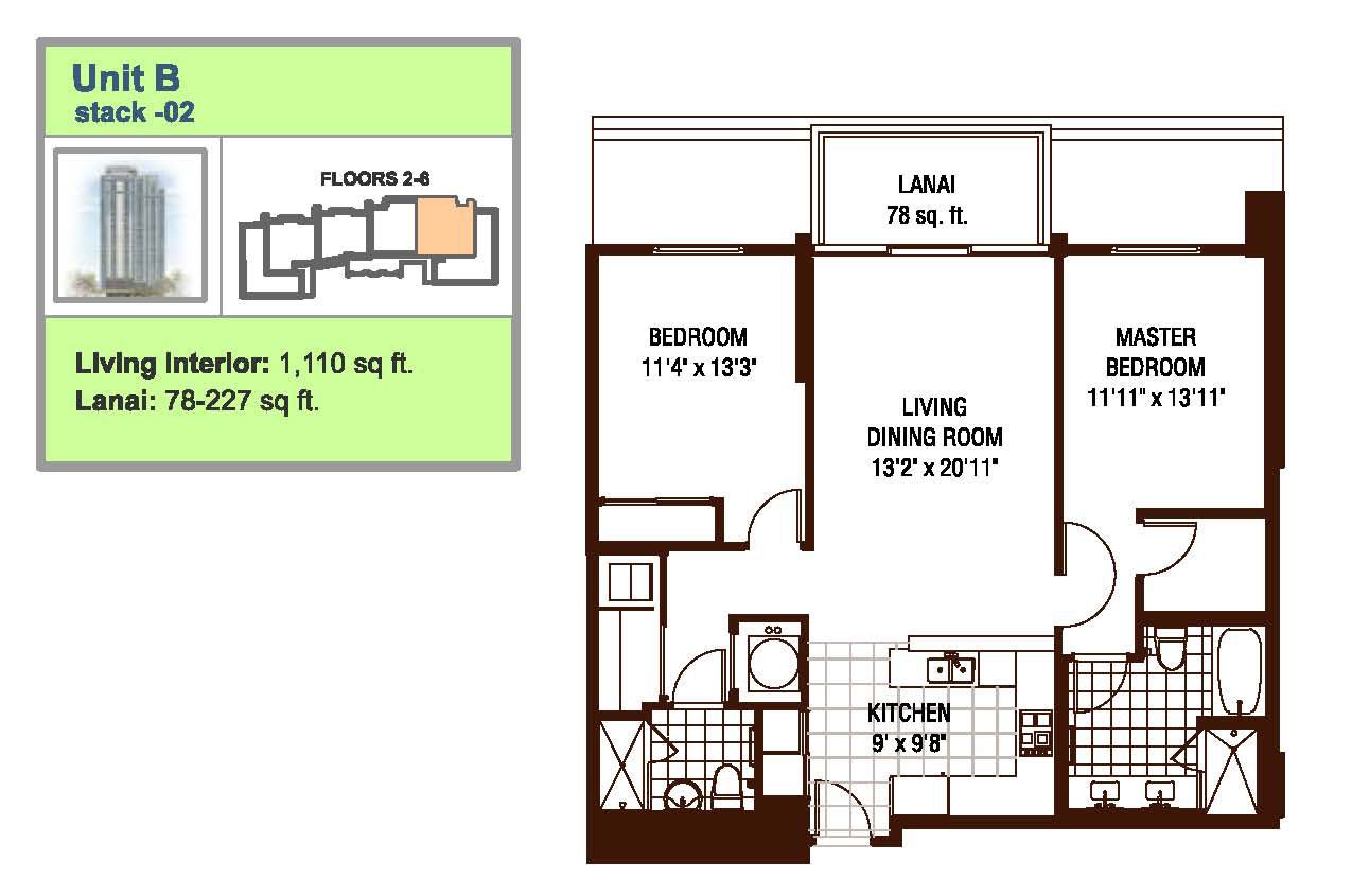
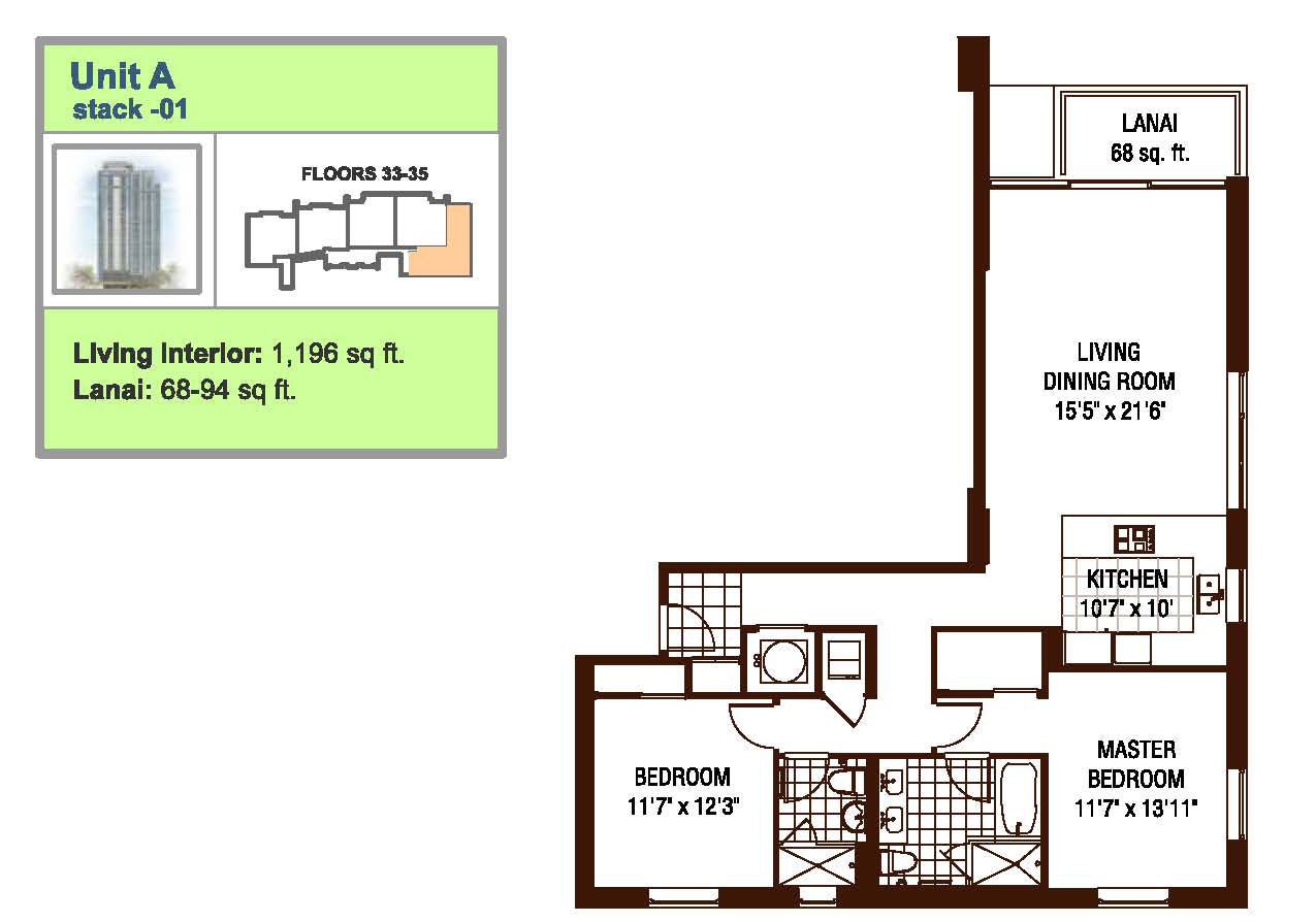
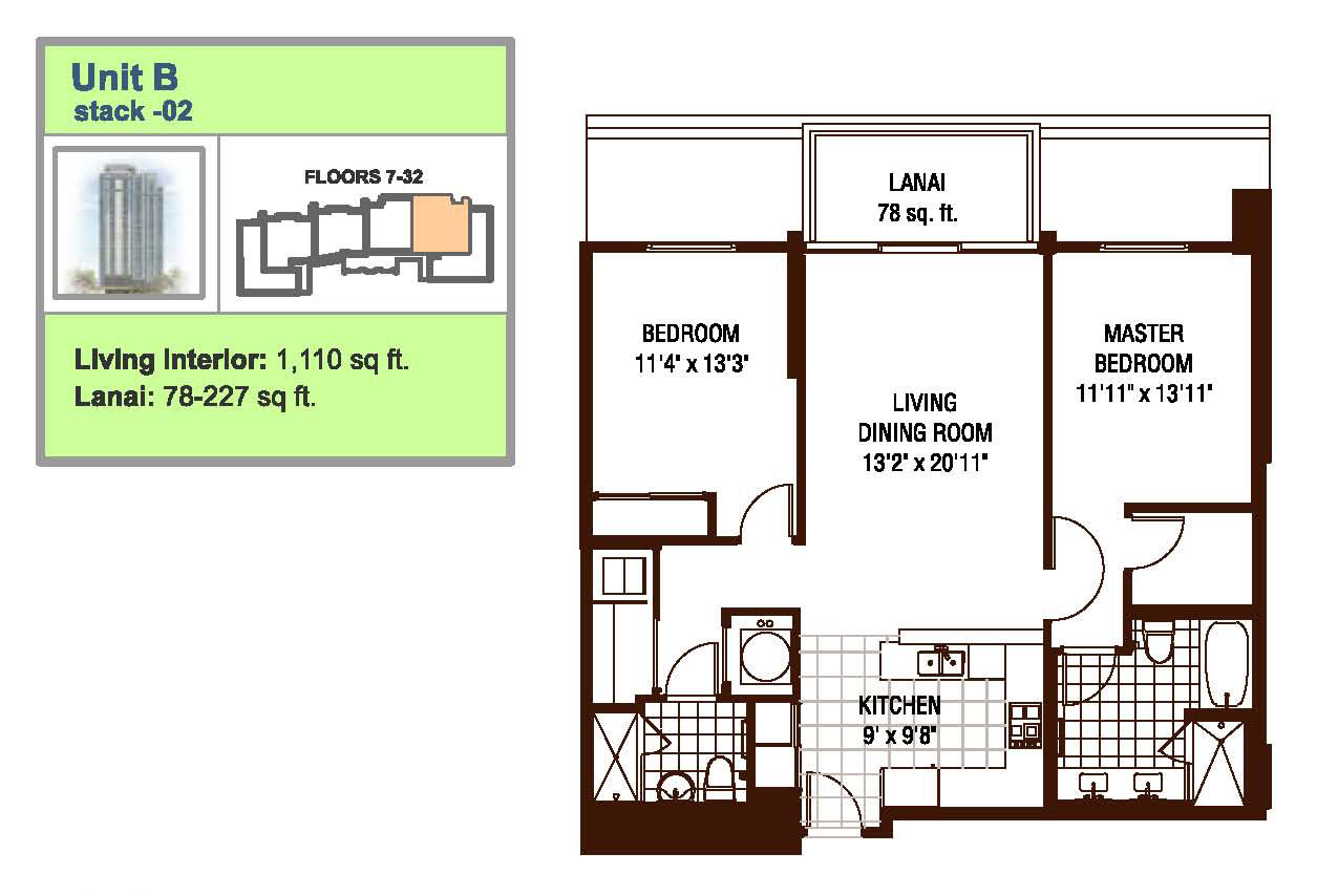
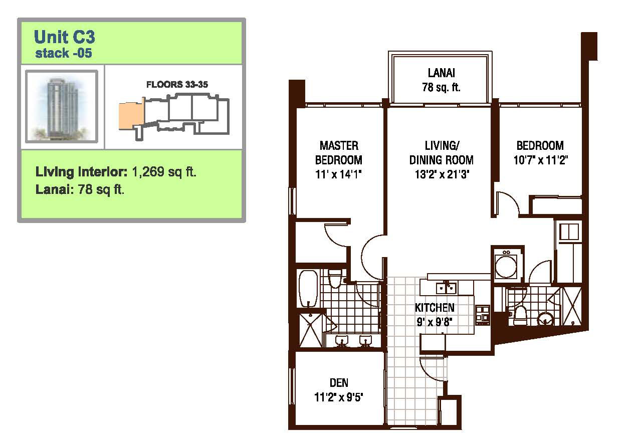
210 exclusive 2-bedroom, 2-bath luxury residences (1,081 to 1,275 sq. ft.) Spacious lanais (68 to 944 sq. ft.)
Two penthouses (1,873 with 668 sq. ft. lanai & 2,280 with 1,405 sq. ft. lanai)
FLOORS 2-6
FLOORS 7-32
FLOORS 33-35
 
FLOORS 36-37
 
 
Thank you for using The Hawaii State Condo Guide. Marty Sanders (RA) & HalbergCS developed this product to help real estate professionals and consumers find, analyze and compare condominium and co-op properties in Hawaii .  The properties are listed in alphabetical order by TMK (Tax map Key) Zones and include in the Oahu (City and County of Honolulu) section; the following are some of the areas we cover: Metro Honolulu, Salt Lake, Kalihi, Kam Heights, Nuuanu, Downtown, Kakaako, Pacific Heights, Punchbowl, Diamond Head, Hawaii Kai, Aina Haina, Niu Valley, Kapahulu, Kaimuki, Kahala, Lanikai, Kailua, Kaneohe, Kaaawa, Hauula, Laie, Kahuku, North Shore, Haleiwa, Waimea, Central, Wahiawa, Leeward, Waianae, Maili, Nanakuli, Makaha, Aiea, Pearl City, Ewa, Ewa Beach, Kapolei, Makakilo, Waipahu, Royal Kunia, Mililani, Halawa, Manana, for more...see the Oahu Condo Page.
We strive to provide as complete data as possible about each condo and co-op listed including but not limited to Name, address, zip code, area schools, owner occupancy, # of buildings, floors, # of units, floor plans, amenities, inclusions, pets, tenure, tmk, land area, etc…
We hope you have found this Oahu guide useful and will recommend it to your friends and colleagues.  Please also see our sections on The Valley Isle of Maui, The Friendly Isle of Molokai & The Pineapple Island of Lanai, The Big Island of Hawaii and The Garden Island of Kauai.
all data contained in this website gathered from public sources and has not been verified by website owners.
This website built and maintained by HalbergCS. This website is owned by Marty Sanders (RA) & HalbergCS © 2015